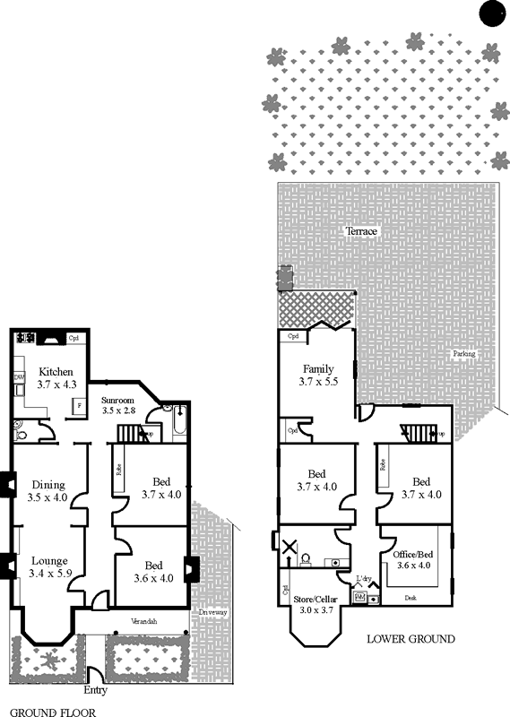
100 Annandale Street Annandale

 




Copyright 2003 © Mark Allan Property Consultants.