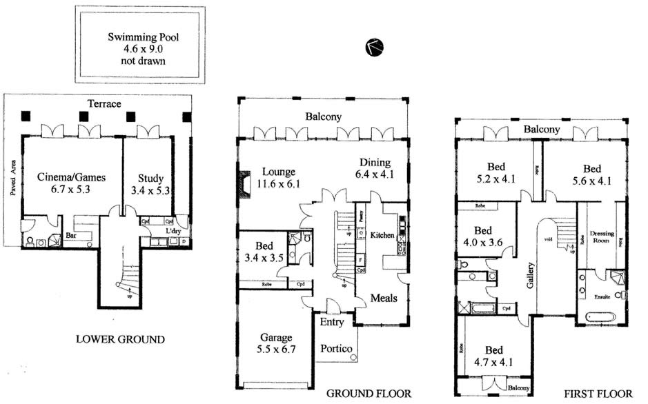
Banyandah - 20 Rednal Street, Mona Vale

 




Copyright 2003 © Mark Allan Property Consultants.