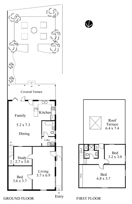
3 Mitchell Street McMahons Point

 




Copyright 2003 © Mark Allan Property Consultants.