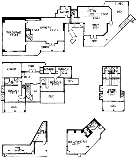
Northbridge
Copyright 2003 © Mark Allan Property Consultants.